Cranwell Court, Bundoora
Our clients for this renovation purchased their first home as a fixer-upper. This renovation included opening up the previously separated spaces to create an open-plan kitchen, living and dining area. We also included a European laundry to allow for glass doors to be installed in the future outdoor entertaining space. The renovation also included new flooring throughout, a new feature front door and a solar tube skylight to the once-dark hallway plus many other updates. The transformation is quite spectacular and our clients are loving their new home. The project cost for this renovation was $80,000+.

Kitchen Renovation Features
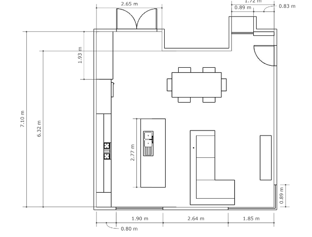
Room size following the renovation is approx. 7m x 7m with a ceiling height of 2.4m. Timber stud walls and timber subfloor.

















